Ferienpark Auf dem Simpel
About Ferienpark Auf dem Simpel
Contact Information
Phone: 49-5191 3651
Fax: +49519116095
Email: [email protected]
Website
http://www.auf-dem-simpel.de/Location
Gallery

Primary image

Reception

Room

Room

Room

Room

Room

Room

Room

Room

Room

Room

Room

Room

Room

Room

Room

In-room dining

Private kitchen

Private kitchen

Private kitchenette

Living area

Living area

Living area

Living area

Terrace/patio

Terrace/patio

Terrace/patio

Terrace/patio

Room amenity

Room amenity

Room amenity

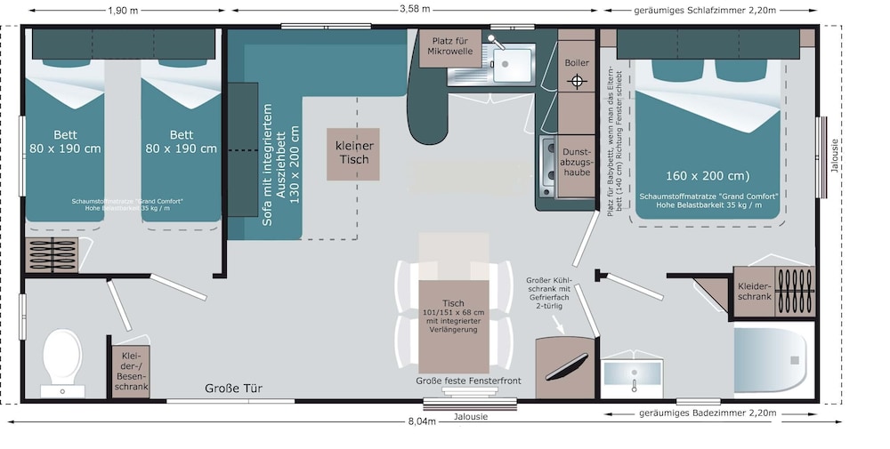
Floor plan

Bathroom

Bathroom

Bathroom

Bathroom

Bathroom

Bathroom

Bathroom

Bathroom shower

Outdoor pool

Bicycling

Hiking

Hiking

Children's play area - outdoor

Property entrance

Outdoor dining

Exterior detail

Exterior detail

Exterior detail

Exterior

Resort view

Resort view